Без % Євро 3-кімнатна квартира, м Вишневе, вул. Лесі Українки, 19. (№ 213-159-312)

Ціна: 95 000 $
Характеристики
Ціна: | 95 000 $ |
---|---|
№ об'єкта: | 213-159-312 |
Кімнат: | 3 розд |
Поверх: | 5 / 8 ліфт |
Площа: | 74 / - / 11 м2 |
Санвузол: | 1 роздільний |
Балкон: | балкон |
єОселя 3%: | - |
єОселя 7%: | - |
Адреса: Київська, Бучанський (Києво-Святошинський), Вишневе, Лесі Українки, 19
Без % Євро 3-кімнатна квартира, м Вишневе, вул. Лесі Українки, 19.
Продається євро 3-кімнатна квартира, м. Вишневе, вул. Лесі Українки, 19
Світла та затишна євро 3-кімнатна квартира площею 74,6 м2 з якісним ремонтом, розташована на 5-му поверсі 8-поверхового будинку 2007 року з ліфтом.
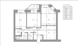
Квартира має зручне планування: дві окремі спальні, гостьова зона-вітальня, окрема кухня, комора-гардеробна, роздільний санвузол, засклений балкон.
Перепланування узаконене, технічний паспорт оновлений.
Переваги:
Якісний сучасний ремонт з використанням надійних матеріалів. 1 власник, зареєстрований також 1, без дітей.
Опалення — дахова котельня, є газ.
У кожній кімнаті — кондиціонери (3 шт) з функцією обігріву.
Підігрів підлоги у ванній та туалеті.
У спальні залишається ліжко та вбудовані меблі.
У коморі — бойлер для нагріву води.
Кухня повністю обладнана: посудомийна машина та духова шафа Bosch.
План квартири додається. Документи готові до угоди.
Розглядаємо продаж за сертифікатом (ваучером) єВідновлення.
Продаж без % та комісії для покупця.
Телефонуйте для перегляду!.