Продам 2к квартиру з ремонтом, 55м2 + Комора 4м2. ЖК Paradise Avenue. (№ 213-122-489)

Ціна: 84 500 $
Характеристики
| Ціна: | 84 500 $ |
|---|---|
| № об'єкта: | 213-122-489 |
| Кімнат: | 2 розд |
| Поверх: | 13 / 15 |
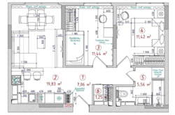
| Площа: | 55 / - / 20 м2 |
| Санвузол: | 1 сумісний |
| Балкон: | відсутній |
| єОселя 3%: | - |
| єОселя 7%: | - |
Адреса: Київська, Бучанський (Києво-Святошинський), Крюківщина
Пропонується простора, світла та комфортна 2-кімнатна квартира площею 53,4 м? (фактично ~55 м?) у сучасному утепленому будинку, зданому в експлуатацію у жовтні 2019 року + Комора, 4м2 в підвалі. З квітня 2020 року проживали лише власники — квартира не здавалася в оренду, ремонт зроблений для себе з використанням якісних матеріалів і техніки. Локація: Крюківщина, вул. Панорамна, 2Г - 1 км до Києва, зручний виїзд без заторів. Будинок: - Монолітно-каркасний, утеплений мінеральною ватою — комфортна температура та шумоізоляція, - 13 поверх із 15, 2 ліфти — вантажний і пасажирський, - 6 квартир на поверсі, є загальний балкон, охайне фойє, - ОСББ — доглянута територія, ефективне управління, чистота та порядок, - Генератор у ЖК на випадок відключення електроенергії, що живить котельню, насоси на воду та ліфти — безперервний комфорт у будь-яких умовах. Планування: - Кухня-вітальня 20 м? (лоджія об’єднана), - Дві окремі кімнати по 11.5 м?, - Санвузол — 5,5 м?. - Просторий коридор Комфорт та якість: - Опалення — від власної котельні на 5 будинків, труби розведені під підлогою по центрах кімнат — тепла підлога в опалювальний сезон, - Електрична тепла підлога RAYCHEM (Бельгія) — у ванній (2 м?) та кухні-вітальні (15 м?), - Професійна шумоізоляція стель і спальні від Wolf Bavaria Україна, - Оплата за опалення взимку — лише 800 грн в місяць. Оздоблення та техніка: - Кухня — фарбований МДФ з фурнітурою BLUM (Австрія), - Вбудована техніка Electrolux (варильна поверхня, духова шафа, витяжка), посудомийна машина Bosch - Прально-сушильна машина Electrolux, двохдверний холодильник Samsung, - Ванна RAVAK, змішувачі HANSGROHE, унітаз Catalano, - Бойлер Gorenje 100 л. Інженерія та електрика: - Мідна проводка ЗЗКМ, - Автоматика EATON (Німеччина), - Фурнітура ABB, серія Zenit (Іспанія), - Світильники EGLO (Австрія), - Плитка на підлозі — PAMESA (Іспанія), у санвузлі — Baldocer (Іспанія). Двір та інфраструктура: - Закритий двір із ландшафтним дизайном, газонами, - Штучне озеро — зона для прогулянок, - Кілька дитячих майданчиків для різного віку, - Жодних авто під вікнами — безпека та комфорт. Додатково: - Комора в підвалі — 4 м?, з оштукатуреними стінами та стелажами, може використовуватись як укриття та функціональне зберігання. Вікна на схід — сонце до 10:00, далі — прохолода. Стеля з гіпсокартону по всій квартирі. Привітні сусіди, тиха атмосфера, всього 6 квартир на поверсі. Фото другої спальні старе. Зараз встановлені всі двері та плінтус.
Тип будинку: Житловий фонд від 2021 р.;
Назва ЖК: Paradise Avenue;
Тип стін: Газоблок;
Клас житла: Комфорт;
Опалення: Власна котельня;
Ремонт: Євроремонт;
Меблювання: Ні;
Побутова техніка: Плита, Пральна машина, Посудомийна машина, Холодильник, Духова шафа, Варильна панель;
Мультимедіа: Швидкісний інтернет, Wi-Fi;
Комфорт: Грузовий ліфт, Пожежна сигналізація, Госп. приміщення, комора, Панорамні вікна, Ліфт, Меблі на кухні, Ванна, Підігрів підлоги, Автономний електрогенератор, Кондиціонер, Гостьовий паркінг;
Комунікації: Електрика, Вивіз відходів, Асфальтована дорога, Газ, Центральна каналізація, Центральний водопровід;
Інфраструктура (до 500 метрів): Супермаркет, ТРЦ, Ринок, Магазин, кіоск, Відділення банку, банкомат, Ресторан, кафе, Дитячий майданчик, Зупинка транспорту, Парк, зелена зона;
Ландшафт (до 1 км.): Озеро;
Інклюзивність: Голосові сповіщення у ліфті, Ліфт розміром не менше 1,1х1,4 м., Широкі двері в підїзді (від 0,9 м.), Двері ліфту шириною від 0,9 м., Поручні на сходах;


















