Продам 1-кімнатну квартиру 36 м2, 5 пов, Вишневе (№ 213-120-738)

Ціна: 35 000 $
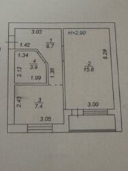
Характеристики
Ціна: | 35 000 $ |
---|---|
№ об'єкта: | 213-120-738 |
Кімнат: | 1 розд |
Поверх: | 5 / 5 |
Площа: | 36.4 / 15.8 / 7.4 м2 |
Санвузол: | 1 сумісний |
Балкон: | балкон |
єОселя 3%: | - |
єОселя 7%: | - |
Адреса: Київська, Бучанський (Києво-Святошинський), Вишневе, Миколи Хвильового, 1
Продам 1кімнатну квартиру, не кутова, є парковка біля дома, в житловому стані, поруч є все необхідне Документи гтові к продажу, боргів не має
Деталі
В квартирі 1 кімната. Планування кімнат Роздільне. Є газ. Гаряча вода - централізована. Опалення центральне. Загальний стан квартири - Хороший стан. Прямий продаж, Вільна. Інтернет дротовий (кабельний)