Продам картиру ЖК Софіївська Слобідка 99500 (№ 213-119-361)

Ціна: 99 500 $
Характеристики
| Ціна: | 99 500 $ |
|---|---|
| № об'єкта: | 213-119-361 |
| Кімнат: | 2 розд |
| Поверх: | 5 / 5 |
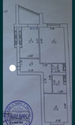
| Площа: | 61 / - / 12 м2 |
| Санвузол: | 1 сумісний |
| єОселя 3%: | - |
| єОселя 7%: | - |
Адреса: Київська, Бучанський (Києво-Святошинський), Софіївська Борщагівка, боголюбова 27
Двокімнатна квартира Жк Софіївська слобідка , поруч Софія Сіті.
Продаж чудової квартири в ЖК Софіївська Слобідка по вул. Боголюбова, 27, поруч ЖК Софія, центральна алея. Повноцінна 2-кім квартира площею 61 м2 з окремою кухнею, спальнею, вітальнею, гардеробною, санвузол сумісний. Зроблений якісний дизайнерський ремонт у 2022 році, керамогранітна плитка на підлозі і санвузлі, стіни - шпалери під фарбування, декілька сценаріїв освітлення. Продумане функціональне розміщення меблів та техніки. Залишаються меблі та техніка: вбудована кухня з духовкою, варильною поверхнею, холодильник, пральна машина, розкладний двухспальний диван та велике ліжко, окрема шафа та гардеробна кімната для зручного зберігання речей. Є обідній стіл, барна стійка та робоче місце. Побутова техніка фірми Samsung. Велике дзеркало з лед підсвіткою (в санвузлі та коридорі). Дуже гарна та стильна квартира, вживу виглядає краще ніж на фото. 5u002F5 поверх, будинок без ліфта. До центральної алеї ЖК Софія 300 метрів. Є піша доступність до інфраструктури міста Вишневого: дитячий садок, школа, супермаркети, спортивні та фітнес зали, поліклініка, кінцева зупинка маршрутних таксі. Біля будинку для кожної квартири є своє паркомісце без додаткової оплаты, також достатня кількість вільних гостьових паркомісць. Індивідуальне газове опалення - двухконтурний газовий котел, газова варильна поверхня, що значно полегшує життя при відключеннях світла. Підключена охоронна система фірми Аякс. Встановлені лічильники.
Вид обєкта: Вторинний ринок;
Тип будинку: Житловий фонд 2011-2020-і;
Назва ЖК: Софіївська слобідка;
Тип стін: Цегляний;
Планування: Роздільна;
Cанвузол: Суміжний;
Опалення: Індивідуальне газове;
Ремонт: Авторський проект;
Меблювання: Так;
Побутова техніка: Плита, Варильна панель, Пральна машина, Духова шафа, Холодильник;
Мультимедіа: Wi-Fi, Швидкісний інтернет, Телевізор, Кабельне, цифрове ТБ;
Комфорт: Паркувальне місце, Душова кабіна, Відеоспостереження, Сигналізація, Балкон, лоджія, Гардероб, Меблі на кухні;
Комунікації: Газ;
Інфраструктура (до 500 метрів): Магазин, кіоск, Лікарня, поліклініка, Дитячий садок, Супермаркет, ТРЦ, Ринок, Парк, зелена зона, Зупинка транспорту, Дитячий майданчик, Відділення пошти, Відділення банку, банкомат, Ресторан, кафе, Аптека, Школа;





















