Продається 2к Квартира з чистовим оздобленням біля Лікограду (№ 213-115-191)

Ціна: 50 000 $
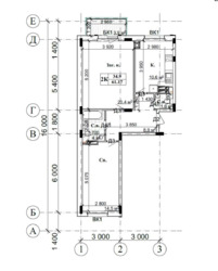
Характеристики
Ціна: | 50 000 $ |
---|---|
№ об'єкта: | 213-115-191 |
Кімнат: | 2 розд |
Поверх: | 5 / 8 ліфт |
Площа: | 60 / - / 10 м2 |
Санвузол: | 1 сумісний |
Балкон: | балкон |
єОселя 3%: | + |
єОселя 7%: | - |
Додатково: | новобудова |
Адреса: Київ, Голосіївський, Теремки, Павла лі, 2е, м. Васильківська
! Будинок підключений до каналізації та води, але потрібно виконати магістральні роботи на районі згідно вимог водоканалу. Пров. Павла Лі 2е.
Введено в експлуатацію в 2017р, є право власності. Можливий продаж через єОселя під 3% (!) 5 поверх.
Загальна площа 60.4 кв, 2 кімнати, окрема кухня, є комора з виводом комунікацій під пральну машину. Встановлена плитка (кухня, комора, вана). Під плиткою (окрім комори) встановлений нагрівальний мат. Виконане чистове оздоблення (вирівняно стіни, підлогу під ламінат, стелю під фарбування). Встановлені важкі вхідні двері (130кг) на 2 замка. Встановлені вікна на балкон (склопакети Trocal), стіни балкона зсередини обшиті плиткою. Розведена сантехніка та елетрика. Встановлена сталева вана (німецька). Також є раковина та унітаз (не встановлені). В комплекті є кухня та проект до неї (треба зібрати та встановити), але немає стільниці. Залишилось зробити: Шпалери або покраска стін Ламінат (приблизно 40кв) Фарбування стелі Встановлення міжкімнатних дверей Встановлення розеткок та вимикачів (вже закуплені) Збірка кухні (немає стільниці) та встановка кранів Установка освітлення.