Продаж 2-кім, 77 кв.м, Ясинуватський пров. 10 (7 поверх), м.Деміївська. (№ 213-107-047)

Ціна: 110 000 $
Характеристики
Ціна: | 110 000 $ |
---|---|
№ об'єкта: | 213-107-047 |
Кімнат: | 3 см/рз, студія |
Поверх: | 7 / 25 ліфт |
Площа: | 77 / - / 25 м2 |
Санвузол: | 2 сумісний |
єОселя 3%: | - |
єОселя 7%: | - |
Додатково: | новобудова |
Адреса: Київ, Голосіївський, Ясинуватський пер, 10, м. Деміївська
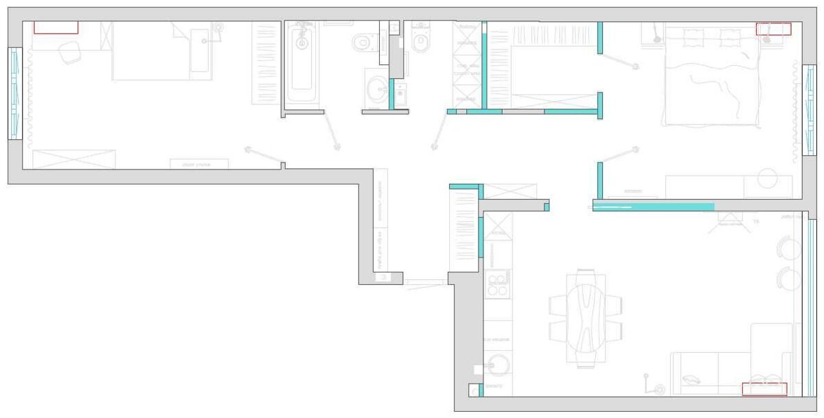
Продається 2-кімнатна квартира. 77 кв.м. ЖК The Lakes, Київ, Ясинуватський провулок 10, Голосіївський район. 7 поверх. Будинок монолітно-каркасний. В будинку встановлений генератор. Планування включає: - Кухня-студія (25 кв.м) - Перша кімната (15 кв.м) з гардеробом (4 кв.м); - Друга кімната (16 кв.м) - Перший санвузол (3.7 кв.м) - Другий санвузол (3 кв.м) - Коридор та вітальня (10 кв.м) Квартира після забудовника не експлуатувалась. Завершені підготовчі роботи (в т.ч. зведені перегородки, стяжка підлоги, стеля гіпсокартон, чорнова штукатурка, розведена електрика). Залишилось зробити оздоблювальні роботи. Для квартири додається (входить в ціну) матеріали та обладнання на загальну суму більше $7000: - Дизайнерський проект . - Вся сантехніка для 2х санвузлів (ванна акрилова AM-PM Spirit 170х70 з каркасом, дзеркало AM-PM Spirit з системою антизапотівання та сенсором, база з раковиною AM-PM Spirit, підвісні унітази AM-PM Spirit (2 шт), система інсталяції (2 шт), умивальник Laufen, змішувач для раковини Tender, 2 рушникосушарки). - Бойлер на 200 л Atlantic VSRS 200. - Змішувач для кухні Daici. - Двері міжкімнатні приховані ТМ Secret Doors висотою 2100 мм, алюмінієвий каркас, під обробку. Ручки Coral (Туреччина). Короби та вся фурнітура. - Плитка для підлоги - Almera Ceramica (Spain). - Плитка для санвузлів - Lasselsberger-Rako (Czechia). - Проведена повна профілактика всіх вікон, встановлені нові зовнішні підвіконня. Про ЖК Житловий квартал «The Lakes» побудовано у 2018 році. Має автономне опалення. Фасад має ефективне утеплення. На території кварталу є дитячі та спортивні майданчики, кавярні, салони краси, продуктові магазини, відділення Нової Пошти та багато іншого. Поруч метро Деміївська та автовокзал.