Танхаус на Петропавлівські Борщагівці. Ціна за метр краще ніж квартира. (№ 213-104-457)

Ціна: 70 000 $
Характеристики
Ціна: | 70 000 $ |
---|---|
№ об'єкта: | 213-104-457 |
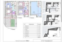
Кімнат: | 3 розд |
Поверх: | 3 / 3 |
Площа: | 90 / - / - м2 |
Санвузол: | 2 роздільний |
Балкон: | тераса |
єОселя 3%: | - |
єОселя 7%: | - |
Адреса: Київська, Бучанський (Києво-Святошинський), Петропавлівська Борщагівка
Продається таунхаус з центральними комунікаціями на фінальній стадії будівництва. Таунхауси знаходяться на Петропавлівській Борщагівці в тихому та затишному районі. Житловий комплекс має власну закриту, охоронювану територію з власними дитячим та спортивним майданчиком, за 300 м. від комплексі знаходиться затишний Празький парк. В пішій доступності від комплексу знаходиться все, що необхідно для комфортного життя: зупинки громадського транспорту, супермаркет, парк, сучасна школа та дитячий садок, спортивні майданчики, тренажерна зала та дитячі секції. Загальна площа таунхаусу 100 м.кв. з вільним плануванням. Таунхауси побудовані з червоної цегли та утеплені мінеральною ватою. В комплексі центрально водопостачання та каналізація а також індивідуальне газове опалення. В вартість входить: стяжка на першому поверсі, штукатурка стін, газовий котел, бетонні сходи, вікна, благоустрій. Поспішайте, таунхаусів в комплексі залишилось небагато..
Відстань до найближчого міста: У місті;
Площа ділянки: 1 соток;