продам квартиру жк ЖК CITY LAKE (№ 213-094-377)

Ціна: 39 999 $
Характеристики
Ціна: | 39 999 $ |
---|---|
№ об'єкта: | 213-094-377 |
Кімнат: | 1 |
Поверх: | 4 / 5 |
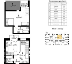
Площа: | 62 / - / 16 м2 |
єОселя 3%: | - |
єОселя 7%: | - |
Адреса: Київська, Бучанський (Києво-Святошинський), Білогородка
Продам 2 кімнатну квартиру в ЖК CITY LAKE, Білогородка.
Продам 2х кімнатну квартиру в розкішному ЖК CITY LAKE Загальна площа 62 м2 Розташована на 4-5 поверсі з 5 - Індивідуальне газове опалення. - Централізоване водопостачання та каналізація. ЖК City Lake розташований в 6 км від межі м. Києва, в с. Шевченкове (Бучанський район). На території є вихід до озера та пірс. Територія закрита, знаходиться під цілодобовою охороною і відеоспостереженням. Інфраструктура в комплексі. Наявність власної школи та дитячого садочку, власний пляж, продуктові магазини, аптека, танцювальна студія, ресторани та кавярні, зарядні електростанції для автомобілів, салони краси та інше. На території ЖК City Lake просторі алеї, велосипедні доріжки, альтанка і сучасні дитячі майданчики. До м.Житомирська 15 хв на авто. Дуже гарне місце для проживання! Телефонуйте 09*********53. Перегляди по домовленності у зручний для Вас час!.
Вид обєкта: Новобудова;
Назва ЖК: City Lake;
Тип угоди: Переуступка;
Тип стін: Цегляний;
Клас житла: Комфорт;
Планування: Багаторівнева;
Cанвузол: 2 і більше;
Опалення: Індивідуальне газове;
Комфорт: Паркувальне місце, Охорона території;
Комунікації: Вивіз відходів, Центральна каналізація, Газ, Електрика, Асфальтована дорога, Центральний водопровід;
Інфраструктура (до 500 метрів): Магазин, кіоск, Лікарня, поліклініка, Дитячий садок, Супермаркет, ТРЦ, Ринок, Парк, зелена зона, Зупинка транспорту, Дитячий майданчик, Відділення пошти, Відділення банку, банкомат, Ресторан, кафе, Аптека, Школа;
Ландшафт (до 1 км.): Ліс, Озеро;