Продам 2к квартиру 61.7 м2, 3 пов,ЖК Софія Київська, 55000 у.о. (№ 213-083-405)

Ціна: 55 000 $
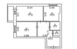
Характеристики
Ціна: | 55 000 $ |
---|---|
№ об'єкта: | 213-083-405 |
Кімнат: | 1 розд |
Поверх: | 3 / 12 |
Площа: | 61 / - / 10 м2 |
Санвузол: | 1 роздільний |
Балкон: | балкон |
єОселя 3%: | - |
єОселя 7%: | - |
Адреса: Київська, Бучанський (Києво-Святошинський), Софіївська Борщагівка, Павла Чубинського
2-кімнатна квартира з попереднім ремонтом. Централізоване теплопостачання (будинкова котельня), радіатори опалення, вода, каналізація, електропроводка. Встановлені лічильники: вода, тепло, електропостачання. Дім введено в експлуатацію. УСББ. Ви можете бути першими мешканцями цього приміщення. Перегляд по неділях. Час за домовленістю..
Тип будинку: Житловий фонд 2011-2020-і;
Назва ЖК: ЖК Софія Київська;
Тип стін: Цегляний;
Планування: Роздільна;
Cанвузол: Роздільний;
Опалення: Власна котельня;
Ремонт: Житловий стан;
Меблювання: Ні;
Комфорт: Охорона території, Ліфт;
Комунікації: Центральний водопровід, Скважина, Електрика, Центральна каналізація, Вивіз відходів;
Інфраструктура (до 500 метрів): Дитячий садок;
Інклюзивність: Двері ліфту шириною від 0,9 м., Ліфт розміром не менше 1,1х1,4 м.;