Акварелі 2. Продам 2-к квартиру, 67 м2, Вишневе (№ 213-065-328)

Ціна: 90 000 $
Характеристики
| Ціна: | 90 000 $ |
|---|---|
| № об'єкта: | 213-065-328 |
| Кімнат: | 2 розд |
| Поверх: | 15 / 17 ліфт |
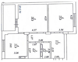
| Площа: | 67 / - / 11 м2 |
| Санвузол: | 1 роздільний |
| Балкон: | лоджія |
| єОселя 3%: | - |
| єОселя 7%: | - |
Адреса: Київська, Бучанський (Києво-Святошинський), Вишневе
Продаж 2-х кімнатної квартири в ЖК Акварелі 2 Загальна площа: 67,8. Дизайнерський ремонт. Планування – роздільне, 2 окремі спальні, кухня, ванна кімната та вбиральня, велике лоджія. Сучасний стильний ремонт. Якісні: ламінат в кімнатах (Tarkett 33 клас, Німеччина) та плитка (Pamesa, Іспанія) на кухні, в коридорі та санвузлах; вхідна та міжкімнатні двері. Техніка фірми Bosch. В кухні: індукційна плита, духова шафа, витяжка, холодильник. В ванній: пральна та сушильні машини. В туалеті: бойлер 180 літрів. Вся сантехніка Hansgrohe (Німеччина). Мийка та витяжка фірми Franke (Швейцарія). Вікна Rehau. Лоджія додатково утеплена з прекрасним видом на місто, можна використовувати, як кабінет або кімната. Встановлено лічильники на тепло. Під час будівництва зробили утеплення стіни на фасаді між квартирою та сусідньою секцією будинку, що додатково взимку зберігає тепло, а літом прохолоду. ЖК «Акварелі – 2» має чудову інфраструктуру. Поряд супермаркети, дитячі садки, школа, майданчики, водоспад, баскетбольна площадка, спортивні тренажери, багато кав’ярень, кафе, салонів краси, клініка, аптеки, різні магазини та ін. На території є закритий паркінг.
Додатково на цьому ж поверсі біля ліфта продаємо комірку розміром - 4 м кв. Вартість – 5.000 тис. у.о.
Також місце в критому паркінгу. Вартість 15.000 тис у.о.
Тип будинку: Житловий фонд 2011-2020-і;
Тип стін: Монолітний;
Клас житла: Комфорт;
Опалення: Централізоване;
Ремонт: Авторський проект;
Меблювання: Так;
Побутова техніка: Посудомийна машина, Сушильна машина, Холодильник, Варильна панель, Духова шафа, Плита, Пральна машина;
Мультимедіа: Кабельне, цифрове ТБ, Швидкісний інтернет, Wi-Fi;
Комфорт: Кондиціонер, Балкон, лоджія, Ванна, Ліфт, Меблі на кухні, Паркувальне місце, Грузовий ліфт, Госп. приміщення, комора, Гардероб;
Комунікації: Центральна каналізація, Електрика, Вивіз відходів, Центральний водопровід;
Інфраструктура (до 500 метрів): Дитячий садок, Дитячий майданчик, Школа, Супермаркет, ТРЦ;
Інклюзивність: Двері ліфту шириною від 0,9 м., Ліфт розміром не менше 1,1х1,4 м., Поручні на пандусі, Пандус довжиною понад 2,4 м., Широкі двері в підїзді (від 0,9 м.);

















