Продам 2-к квартиру ЖК Оптимісто 82441 (№ 213-029-861)

Ціна: 82 441 $
Характеристики
Ціна: | 82 441 $ |
---|---|
№ об'єкта: | 213-029-861 |
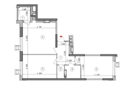
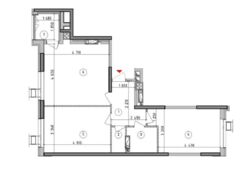
Кімнат: | 2 розд |
Поверх: | 3 / 10 ліфт |
Площа: | 67.82 / 31.4 / 21.22 м? м2 |
Санвузол: | 1 сумісний |
Балкон: | лоджія |
єОселя 3%: | - |
єОселя 7%: | + |
Адреса: Київська, Фастівський, Гатне, ЖК Оптимісто
Київська вул., 1
Житловий комплекс «Оптимісто» - це два 10-поверхових будинки комфорт-класу у ближньому передмісті столиці – с. Гатне Фастівського району. Назва комплексу відображається у зовнішньому вигляді будинків та прибудинкової території: фасади, місця для відпочинку та дитячі майданчики оформлені яскравими кольорами, які будуть впізнавані навіть здалеку.
Забудова комплексу «Оптимісто» виконана по периметру, що створює закритий внутрішньо дворовий простір. Внутрішня територія комплексу буде розділена на функціональні зони: прогулянковий променад з фонтаном, місця для відпочинку, дитячі ігрові зони для дітей різного віку.
Бетонно монолітний
Роздільне
Від будівельників (з обробкою)