Терміново!Квартира 2к 80м, пр. Берестейський 72. ЖК Happy House. (№ 213-006-812)

Ціна: 81 000 $
Характеристики
Ціна: | 81 000 $ |
---|---|
№ об'єкта: | 213-006-812 |
Кімнат: | 1 |
Поверх: | 5 / 21 |
Площа: | 80 / - / 18 м2 |
єОселя 3%: | - |
єОселя 7%: | - |
Адреса: Київ, Шевченківський, Берестецкая пр.
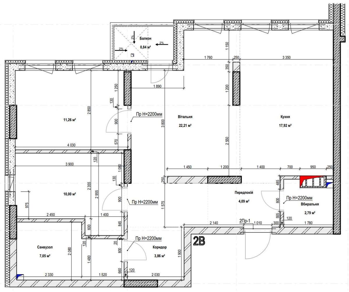
Продаж двокімнатну квартиру в ЖК Happy House по переуступці. Адреса будинку пр. Берестейський 72. Особливості квартири: Всього 80 кв. м. З них 18 кухня, що обєднана з вітальнею в дуже крутий загальний простір близько 40 квадратів. Можна перепланувати. Вікна квартири виходять у тихий двір. Є місце для надзвичайно зручного передпокою з місткими зонами зберігання. Окрема спальня. Ще одна окрема кімната, яку можна використовувати як кабінет, дитячу кімнату тощо. Умовно, в квартирі виходить 3 кімнати, але рахується як 2, тож вказав 2. Два санвузли. В одному за бажанням можна розмістити велику ванну, в іншому душову кабіну. Головний санвузол та кімнати органічно відокремлені від вітальні. Передбачене місце для пральної та сушильної машин. Велика пряма кухня. Дивіться приклад розташування меблів та техніки на третій картинці. Фото саме з цієї квартири. Є дизайн проект, рендери на картинках з нього, віддам в подарунок. Ця квартира знаходиться на 5 поверсі в першій секції будинку. Є підземний паркінг, ліфт в ньому зупиняється, місця в паркінгу ще мають бути. Розташування будинку дуже зручне. Неподалік є спортзал з басейном. Є декілька невеличких магазинів прямо під будинком. Думаю, як введуть в експлуатацію, буде й в самому будинку багато чого. Перші два поверхи йдуть під комерцію. В четвертій секції - дитячий садок. Майже через дорогу є школа. В 5 хвилинах від будинку є станція метро, трамваю та іншого транспорту. На відстані 500м дуже великий парк з озером. Пишіть або телефонуйте, з радістю відповім на ваші питання..