Продам видову 2-к квартиру 65 м2, + кладова 5м2, 3 поверх, ЖК 'Парадайз Авеню' (№ 212-905-792)

Ціна: 73 000 $
Характеристики
| Ціна: | 73 000 $ |
|---|---|
| № об'єкта: | 212-905-792 |
| Кімнат: | 2 розд |
| Поверх: | 3 / 20 ліфт |
| Площа: | 65 / - / - м2 |
| Санвузол: | 1 сумісний |
| Балкон: | балкон |
| єОселя 3%: | + |
| єОселя 7%: | - |
| Додатково: | новобудова |
Адреса: Київська, Бучанський (Києво-Святошинський), Крюківщина, Панорамна (Чорновола), 2
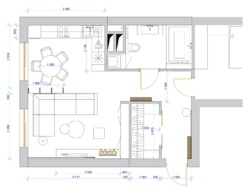
Для квартири є дизайн проект та попередні розрахунки ремонту
Квартира з переплануванням
Крюківщина, Панорамна (Чорновола) вулиця, 2,
Двокімнатна квартира, 3 поверх, 65 м квадратних, на поверсі є комора 5м квадратних




















