Продається 1-к квартира ЖК Добре місто 44000 (№ 212-901-148)

Ціна: 44 000 $
Характеристики
Ціна: | 44 000 $ |
---|---|
№ об'єкта: | 212-901-148 |
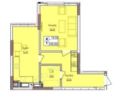
Кімнат: | 1 розд |
Поверх: | 6 / 10 ліфт |
Площа: | 45 / - / 16 м2 |
Санвузол: | 1 сумісний |
єОселя 3%: | + |
єОселя 7%: | - |
Адреса: Київська, Фастівський, Чабани
Власник! Продам однокімнатну квартиру в Чабанах.
Продається 2 однокімнатних квартири поруч , в ЖК Добре Місто -2 , на 6 поверсі, 10- ти поверхового будинку, 3 секція. Будинок теплий, живуть сусіди. Вся інформація по телефону..
Вид обєкта: Новобудова;
Тип будинку: Житловий фонд від 2021 р.;
Назва ЖК: ЖК «Добре місто 2»;
Тип угоди: Переуступка;
Тип стін: Монолітний;
Клас житла: Комфорт;
Планування: Роздільна;
Cанвузол: Роздільний;
Опалення: Індивідуальне газове;
Ремонт: Після будівельників;
Меблювання: Ні;
Комунікації: Вивіз відходів, Центральна каналізація, Газ, Електрика, Асфальтована дорога, Центральний водопровід;
Інфраструктура (до 500 метрів): Супермаркет, ТРЦ, Парк, зелена зона, Зупинка транспорту, Дитячий майданчик, Відділення банку, банкомат, Відділення пошти, Дитячий садок, Магазин, кіоск, Ринок;