Продається об'єкт (№ 24-102-152)
Ціна: 130 000 $

Характеристики
Ціна: | 130 000 $ |
---|---|
№ об'єкта: | 24-102-152 |
Поверх: | 1 / 5 |
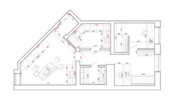
Площа: | 72 м2 |
Стоматологія iDent, Петрівський квартал.
Продаж. Стоматологія iDent. Жк Петрівський квартал, Святопетрівське, вул. Богдана Хмельницького 1-Б. Готовий бізнес з ремонтом та обладнанням для повного спектру стоматологічних послуг. Площа 71,8м Вартість 130000$ Стоматологічна установка Galit, Gallant Omnipatique Eco Next Мікроскоп Scaner Calipso МД-500 Безтіньовий світильник D-Tec Brite Аспіраційна система Durr Dental VS250S (мокра помпа) Компресор DK50-10Zu002FM з осушувачем Апарат інгаляційної аналгезії D-MDM, цифровий, MATRX Автоклав Granum 18B CLASSIC Камера для зберігання стерильних виробів Панмед-5М....
Відстань до найближчого міста: до 5 км.;
Розташування: Фасадне приміщення;
Тип обєкта: Нежитлове приміщення у житловому фонді;
Рік побудови u002F здачі: 2011 - 2015;
Cанвузол: Так;
Опалення: Комбіноване;
Ремонт: Так;