Продам таунхаус_будинок з ремонтом. Центр с. Святопетрівське, поруч магазини, зупинка. (№ 22-421-157)
Ціна: 120 000 $

Характеристики
Ціна: | 120 000 $ |
---|---|
№ об'єкта: | 22-421-157 |
Тип: | таунхаус |
Поверхів: | 2 |
Спалень: | 3 |
Площа будинку: | 125 м2 |
Ділянка: | 2 сот |
єОселя 3%: | - |
єОселя 7%: | - |
Адреса: Київська, Бучанський (Києво-Святошинський), Святопетрівське
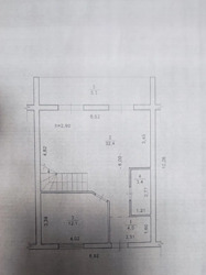
Продам таунхаус_будинок з ремонтом. Центр с. Святопетрівське, поруч магазини, зупинка. Право власності бідьше трьох років, не буде великих податків. • Загальна площа: 125 м? • Кількість кімнат: 3 + студія • Площа ділянки: 2.70 соток • Тип будинку: Таунхаус • Рік побудови u002F здачі: Після 2015 • Зовнішнє утеплення стін: Пінопласт • Cанвузол: 2 • Опалення: Індивідуальне електро • Ремонт: Євроремонт • Меблювання: Так • Побутова техніка, • Комфорт: Кондиціонер, Тераса, Відеоспостереження, Огорожа • Комунікації: Центральний водопровід, Свердловина, Електрика, Центральна каналізація, Вивіз відходів, Асфальтована дорога 1-й поверх - кухня-вітальня з виходом на терасу, кабінет, коридор та санвузол. 2-й поверх - 2 спальні та санвузол. 3-й поверх-горище. - стіни - газобетон, товщиною 300 мм., утеплення пінопластом 10см - міжповерхове перекриття - монолітне. - вікна – металопластикові, трьох камерний профіль, - вхідні двері – металеві з замком та ключами - введене електропостачання: 3 фази; 10 кВт - виведена центральна каналізація -скважина - 2 паркомісця -ремонт, меблі, техніка, живлення для електромобіля, а також система автономного електропостачання (акумулятори +інвертор).
Рік побудови / здачі: Після 2015;
Тип стін: Газоблок;
Зовнішнє утеплення стін: Пінопласт;
Cанвузол: 2 і більше;
Опалення: Індивідуальне електро;
Ремонт: Євроремонт;
Меблювання: Так;
Побутова техніка: Посудомийна машина, Холодильник, Варильна панель, Мікрохвильова піч, Духова шафа, Плита, Пральна машина;
Мультимедіа: Кабельне, цифрове ТБ, Швидкісний інтернет, Телевізор, Wi-Fi;
Комунікації: Електрика;