Продам таунхаус с. Святопетрівське 65000 (№ 22-417-111)
Ціна: 65 000 $

Характеристики
Ціна: | 65 000 $ |
---|---|
№ об'єкта: | 22-417-111 |
Тип: | таунхаус |
Поверхів: | 2 |
Площа будинку: | 100 м2 |
Ділянка: | 1 сот |
єОселя 3%: | - |
єОселя 7%: | - |
Адреса: Київська, Бучанський (Києво-Святошинський), Святопетрівське
Таунхаус 100м2 ГАЗ Святопетрівське вул Райдужна,
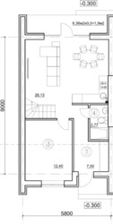
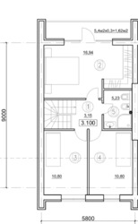
Продаж таунхаусів з ГАЗОМ на етапі будівництва. 100м2 площа будинку, два власних пакромісяця і задній дворик. Площа ділянки 1,5 сотки. Вартість на етапі повної готовності - 67 000 $. Планування - перший поверх велика кухня-вітальня з величезними панорамними вікнами, виходом на задній дворик з терасою під навісом, також на першому поверсі є житлова кімната та санвузол. У вартість входять монолітні сходи на другий поверх. На другому поверсі дві великих кімнати (одну кімнату можна розділити на дві кімнати меншої площі), з виходом на балкон. На етапі будівництва можливе розтермінування. За більш детальною інформацією та для запису на перегляд - дзвоніть по номеру а оголошенні. Багато вже реалізованих об?єктів, є що показати. Також є готові варіанти в різних локаціях. Дзвоніть та записуйтеся на перегляд!.
Кількість кімнат: 4;
Тип будинку: Таунхаус;
Рік побудови u002F здачі: На етапі будівництва;
Тип стін: Газоблок;
Зовнішнє утеплення стін: Пінопласт;
Тип покрівлі: Бітумна черепиця;
Cанвузол: 2 і більше;
Опалення: Індивідуальне газове;