Продам будинок 131м, с. Круглик біля озера. (№ 22-414-685)
Ціна: 78 000 $

Характеристики
Ціна: | 78 000 $ |
---|---|
№ об'єкта: | 22-414-685 |
Тип: | будинок |
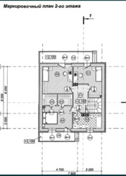
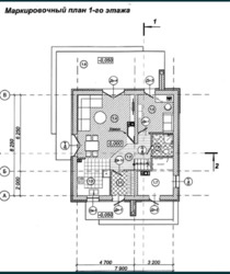
Поверхів: | 2 |
Спалень: | 4 |
Площа будинку: | 131 м2 |
Ділянка: | 4 сот |
єОселя 3%: | - |
єОселя 7%: | - |
Адреса: Київська, Обухівський, Хотів, Круглик! Садова, 5
Продам будинок с. Круглик, ліс та озеро в пішій доступності, тихе місце Скважина 42 м, заведена електрика 15 КВТ три фази, день-ніч
Рік побудови / здачі: Після 2015;
Тип покрівлі: Бітумна черепиця;
Cанвузол: 2 і більше;
Меблювання: Ні;