Продам дуплекс 140 м2, 2 пов, з ремонтом с.Софіївська Борщагівка (№ 22-412-688)
Ціна: 170 000 $

Характеристики
Ціна: | 170 000 $ |
---|---|
№ об'єкта: | 22-412-688 |
Тип: | дуплекс |
Поверхів: | 2 |
Спалень: | 5 |
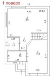
Площа будинку: | 140 м2 |
Ділянка: | 2 сот |
єОселя 3%: | - |
єОселя 7%: | - |
Адреса: Київська, Бучанський (Києво-Святошинський), Софіївська Борщагівка
Продам дуплекс з ремонтом. В Київській області, с.Софіївська Борщагівка. Вартість будинка з ремонтом (уся комунікація та електрика вимикачі вбудоване освітлення) 170000 Вартість з ремонтом і меблями 190000 Площа будинка 140 м2 Матеріали будівництва: стіни: керамоблок; дах: металочерепиця, утеплення мінеральна вата. Комунікації: електрика 7 кВт; газ; септик; скважина. Якісно побудовані дуплекси зі зручною локацією Якщо будинок зацікавив,
Тип покрівлі: Металочерепиця;
Cанвузол: 2 і більше;
Опалення: Індивідуальне газове;
Ремонт: Євроремонт;
Меблювання: Ні;
Комфорт: Ванна, Огорожа, Підсобні приміщення, Підігрів підлоги, Кондиціонер, Душова кабіна, Автоматичні ворота;
Комунікації: Газ, Електрика, Каналізація септик, Вивіз відходів, Асфальтована дорога, Свердловина;