Дом в Козине (Конча-Заспа) 225 м2 под отделку + 6 соток земли (№ 22-412-503)
Ціна: 225 000 $

Характеристики
Ціна: | 225 000 $ |
---|---|
№ об'єкта: | 22-412-503 |
Тип: | дуплекс |
Поверхів: | 3 |
Спалень: | 5 |
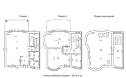
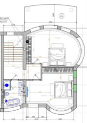
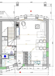
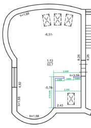
Площа будинку: | 225 м2 |
Ділянка: | 6 сот |
єОселя 3%: | - |
єОселя 7%: | - |
Адреса: Київська, Обухівський, Козин
Дом в Конча Заспе (смт. Козин ул. Козацкая) (6 сот земли + дуплекс 225 кв.м) 3-х эт. дом 225 м2 +6 соток участок. Централизованная канализация и єлектроенергия подведена 16 кВт. Ровный участок с уже сделанным дренажом. Есть асфальтный подъезд, 500 метров до речки Козинка и 100 метров до лесополосы. Дом состоит из симметричных 2-х часте (дуплексы) с отдельными входами, участками и парковками с въездными группами. Дом расположен не далеко от центра смт.Козин где есть: школы, садики, мед. учреждения, магазины, рестораны, отличная рыбалка на р.Козинка. Дом строили для себя качественно и надежно. Готовность: под внутреннюю отделку. Есть все правоустанавливающие документы на землю и дом. Цена за дом с участком:
Відстань до найближчого міста: У місті;
Кількість кімнат: 5;
Тип будинку: Дуплекс;
Рік побудови u002F здачі: Після 2015;
Тип стін: Газоблок;
Зовнішнє утеплення стін: Пінополістирол;
Тип покрівлі: Бітумна черепиця;
Cанвузол: 2 і більше;
Ремонт: Під чистову обробку;
Комфорт: Балкон, Тераса, Камін, Огорожа, Автоматичні ворота, Сад, город;
Комунікації: Газ, Свердловина, Електрика, Центральна каналізація, Асфальтована дорога;
Інфраструктура (до 500 метрів): Дитячий садок, Школа, Магазин, кіоск, Супермаркет, ТРЦ, Парк, зелена зона, Дитячий майданчик, Ресторан, кафе, Відділення пошти;
Ландшафт (до 1 км.): Річка, Озеро, Парк, Ліс;