Продам будинок з ділянкою 8,26 сот, центральна вулиця, Віта-Поштова. (№ 22-411-859)
Ціна: 70 000 $

Характеристики
Ціна: | 70 000 $ |
---|---|
№ об'єкта: | 22-411-859 |
Тип: | будинок |
Поверхів: | 1 |
Спалень: | 2 |
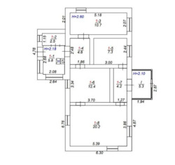
Площа будинку: | 73 м2 |
Ділянка: | 8 сот |
єОселя 3%: | - |
єОселя 7%: | - |
Адреса: Київська, Фастівський, Віта-Поштова
Центральна вулиця, зручне розташування. До Одеської траси 500м., до озера та парку - 500м, до лісу - 300 м. Двухфасадна ділянка площею 0,826 га по вул. Звенигородській, 11. Призначення - Для будівництва і обслуговування житлового будинку. На ділянці розташований будинок (73,2 загальна; 40,5 житлова), сарай, льох, металевий гараж, криниця. Газ, електроенергія, вода, місцеве опалення. Асфальтований підїзд до ділянки. Поруч - зупинка громадського транспорту, Нова Пошта. Будинок та хоз споруди в нормальному стані, не аварійні.
Тип стін: Цегляний;
Тип покрівлі: Шифер;
Cанвузол: Роздільний;
Опалення: Індивідуальне газове;
Ремонт: Житловий стан;
Побутова техніка: Мікрохвильова піч, Холодильник, Пральна машина;
Комфорт: Кондиціонер, Душова кабіна, Огорожа, Гараж, Сад, город;
Комунікації: Газ, Електрика, Каналізація септик, Асфальтована дорога;
Інфраструктура (до 500 метрів): Дитячий садок, Школа, Зупинка транспорту, Магазин, кіоск, Парк, зелена зона, Дитячий майданчик, Аптека, Лікарня, поліклініка, Ресторан, кафе, Відділення пошти;
Ландшафт (до 1 км.): Річка, Водосховище, Озеро, Парк, Ліс;