Продам Будинок в с. Кременище 365000 (№ 22-410-995)
Ціна: 365 000 $

Характеристики
Ціна: | 365 000 $ |
---|---|
№ об'єкта: | 22-410-995 |
Тип: | будинок |
Поверхів: | 2 |
Площа будинку: | 230 м2 |
Ділянка: | 17 сот |
єОселя 3%: | - |
єОселя 7%: | - |
Адреса: Київська, Обухівський, Ходосівка, Кременище
Продаж будинку Кременище..
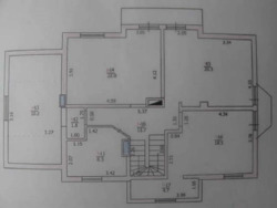
Кременище.ДОМ утопает в зелени!!! Очень живописное место - лес и озера.Дом общей площадью 230 кв.м. с очень рациональной планировкой(большие спальни и гостиная со столовой), ничего лишнего, всё только для комфортного проживания . Установлена охранная сигнализация,видеонаблюдение. Дом отапливается газом (котёл Buderus), может и котлом косвенного обогрева (Tatramat).Электричество -20кВт.Тёплые водяные полы + радиаторы с французкими термодатчиками. Отопительный сезон обходится дешевле, чем 3-х квартира в Киеве. Участок 17,2 сот.огорожен двойным забором с шикарным садом(яблони, груши, абрикос, черешня, вишня, слива, орех). Крытая парковка на 3 авто +гараж для велосипедов. Хозяйственные постройки. План дома , на 1 этаже: гостиная со столовой 44.5 кв.м , .Одна спальня 15кв.м., холл, котельная, постирочная, гардеробная, сu002Fу. На 2 м этаже: 3 спальни от 22, 20, 19кв.м., игровая комната или кабинет- 15 кв.м. большой сu002Fу 9кв.м. с ванной и душевой кабиной. Дом находится в окружении лесов и озёр. Самая лучшая локация рядом с Киевом. Гимназия (Хотов)-7мин.Поликлиники рядом. Вся инфраструктура.Дорогу по Кременище и Ходосовке построили новую. Супермаркеты, детские сады, 2 школы. Две образцовых трассы Новообуховская и Одесская. Парк Феофания - отличное места для жизни и отдыха. Продажа за наличные в долларах..
Відстань до найближчого міста: до 10 км.;
Кількість кімнат: 6;
Тип будинку: Котедж;
Рік побудови u002F здачі: Після 2015;
Тип стін: Цегляний;
Зовнішнє утеплення стін: Пінопласт;
Тип покрівлі: Металошифер;
Cанвузол: 2 і більше;
Ремонт: Євроремонт;
Меблювання: Так;
Побутова техніка: Плита, Варильна панель, Духова шафа, Мікрохвильова піч, Холодильник, Посудомийна машина, Пральна машина;
Мультимедіа: Wi-Fi, Кабельне, цифрове ТБ;
Комфорт: Кондиціонер, Підігрів підлоги, Ванна, Душова кабіна, Балкон, Тераса, Камін, Сигналізація, Відеоспостереження, Огорожа, Автонавіс, Автоматичні ворота, Підсобні приміщення, Сад, город;
Комунікації: Газ, Свердловина, Електрика, Каналізація септик, Вивіз відходів, Асфальтована дорога;
Ландшафт (до 1 км.): Озеро, Ліс;