Продам будинок мрії 105кв., 8 сот, біля Києва с.Шпитьки, 80000 у.о. (№ 22-410-560)
Ціна: 80 000 $

Характеристики
Ціна: | 80 000 $ |
---|---|
№ об'єкта: | 22-410-560 |
Тип: | будинок |
Поверхів: | 1 |
Спалень: | 3 |
Площа будинку: | 105 м2 |
Ділянка: | 8 сот |
єОселя 3%: | - |
єОселя 7%: | - |
Адреса: Київська, Бучанський (Києво-Святошинський), Шпитки
Продаємо будинок у Бучанському (Києво-Святошинському) районі у с. Шпитьки (25км від Києва), в дуже мальовничому та тихому місці.
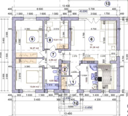
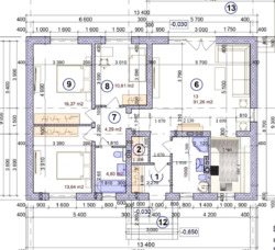
Будинок площею 105 кв.м., 3 окремі кімнати-спальні, кухня, вітальня, гардероб, два санвузла з дуже зручним та продуманим плануванням. Ділянка 8 соток.
У будинок вже проведено електрику 15 кВт та вода. На ділянці свердловина 40 метрів також є каналізація септики. Будинок утеплений мінватою 100 мм.
У будинку встановлено електрокотел, радіатори, чавунна камінна топка, гребінка, проведена скрізь тепла підлога, встановлені підвіконня.
У вартість будинку закладено ціну ділянки, підключення всіх комунікацій, роботу будівельників, доставку та вартість усіх матеріалів.
Будували будинок для себе ! із високоякісних матеріалів. На матеріалах не заощаджували. Всі документи, що підтверджують, є, всю історію будівництва від початку і до кінця надамо.
У будинок можна сміливо заїжджати на ремонт. Професійних робітників надамо, які в найкоротші терміни зроблять у будинку ремонт під ключ за вашим бажанням та дизайном.
За 300 метрів від будинку знаходиться зупинка громадського транспорту. Також у пішій доступності багато озер, великий парк, загальноосвітній сучасний ліцей, школа мистецтв, дитячі садки, поліклініка тощо.
Вся детальна інформація по телефону..
Відстань до найближчого міста: до 30 км.;
Ремонт: Під чистову обробку;
Меблювання: Ні;