Петропавловская Борщаговка. Дом в дуплексе 157 м2. (№ 22-410-554)
Ціна: 172 000 $

Характеристики
Ціна: | 172 000 $ |
---|---|
№ об'єкта: | 22-410-554 |
Тип: | дуплекс |
Поверхів: | 2 |
Спалень: | 5 |
Площа будинку: | 157 м2 |
Ділянка: | 1 сот |
єОселя 3%: | - |
єОселя 7%: | - |
Адреса: Київська, Бучанський (Києво-Святошинський), Петропавлівська Борщагівка
Устали от городской суеты, грязного воздуха, и постоянных проблем с паркоместом? Новый, стильный проект на Петропавловской Борщаговке, 2.5 км от Окружной дороги.
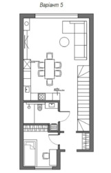
ЛУЧШЕЕ КАЧЕСТВО НА РЫНКЕ НЕДВИЖИМОСТИ ! Дом 157 м2 на участке 1,87 сотки 1 этаж ГАРДЕРОБНАЯ 3.4 М2, СТУДИЯ-КУХНЯ 43.5 М2, САНУЗЕЛ 6.8 М2, КОТЕЛЬНАЯ-КЛАДОВКА 8.0 М2
2 этаж ХОЛЛ 7.2 М2, 1-Я КОМНАТА 10.3 М2, 2-Я КОМНАТА 13.6 М2, СПАЛЬНЯ 10.2 М2, КАБИНЕТ 10.2 М2 ВАННАЯ КОМНАТА 4.3М2, ГАРДЕРОБ 3.7 М2 3 этаж ТЕРРАСА ЗОНА ОТДЫХА-ДЖАКУЗИ И БАРБЕКЮ 52.4 М2 Фундамент: 1,2 глубина 45 см. ширина . Дом построен из высококачественного газоблока Aeroc, самой большой плотности. Перекрытие монолит, перегородки кирпич. Утеплено минватой, BauGut 100 мм. - заведено 16 кВт на дом. Разведена сантехника и электрика - радиаторы отопления Тёплый водяной пол. Своя скважина 40 м. с мощными очистными фильтрами. Септик, автономная канализация. Установлены лучшие окна на рынке Профиль EXTRA V75 (8-ми камерный, 75мм). Стеклопакет 2х камерный (44мм) с мультифункциональным стеклом снаружи и энергосберегающим внутри + аргон в камерах. Фурнитура MACO (Австрия). Раздвижка: система Roto Patio. Напротив находится новая школа и детский сад, стадион, Парижский парк и Sportlife. Рядом расположены, спортзал, бассейн, футбольные и баскетбольные поля, прочие развлекательные, оздоровительные центры..
Відстань до найближчого міста: У місті;
Кількість кімнат: 5;
Тип будинку: Дуплекс;
Рік побудови / здачі: Після 2015;
Тип стін: Газоблок;
Зовнішнє утеплення стін: Мінеральна вата;
Cанвузол: 2 і більше;
Опалення: Індивідуальне електро;
Ремонт: Авторський проект;
Меблювання: Так;
Побутова техніка: Посудомийна машина, Пральна машина, Варильна панель, Духова шафа, Холодильник;
Мультимедіа: Wi-Fi, Швидкісний інтернет;
Комфорт: Підігрів підлоги, Кондиціонер, Автоматичні ворота, Душова кабіна, Ванна, Балкон, Тераса, Камін, Сигналізація, Огорожа, Охорона території, Відеоспостереження;
Комунікації: Свердловина, Електрика, Каналізація септик, Вивіз відходів, Асфальтована дорога;
Інфраструктура (до 500 метрів): Дитячий садок, Школа, Аптека, Лікарня, поліклініка, Зупинка транспорту, Магазин, кіоск, Супермаркет, ТРЦ, Парк, зелена зона;
Ландшафт (до 1 км.): Парк, Озеро;