Танхаус на Петропавлівські Борщагівці. Ціна за метр краще ніж квартира. (№ 22-410-552)
Ціна: 65 000 $

Характеристики
Ціна: | 65 000 $ |
---|---|
№ об'єкта: | 22-410-552 |
Тип: | таунхаус |
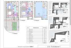
Поверхів: | 3 |
Площа будинку: | 100 м2 |
Ділянка: | 1 сот |
єОселя 3%: | - |
єОселя 7%: | - |
Адреса: Київська, Бучанський (Києво-Святошинський), Петропавлівська Борщагівка
Продається таунхаус з центральними комунікаціями на фінальній стадії будівництва. Таунхауси знаходяться на Петропавлівській Борщагівці в тихому та затишному районі. Житловий комплекс має власну закриту, охоронювану територію з власними дитячим та спортивним майданчиком, за 300 м. від комплексі знаходиться затишний Празький парк. В пішій доступності від комплексу знаходиться все, що необхідно для комфортного життя: зупинки громадського транспорту, супермаркет, парк, сучасна школа та дитячий садок, спортивні майданчики, тренажерна зала та дитячі секції. Загальна площа таунхаусу 100 м.кв. з вільним плануванням. Таунхауси побудовані з червоної цегли та утеплені мінеральною ватою. В комплексі центрально водопостачання та каналізація а також індивідуальне газове опалення. В вартість входить: стяжка на першому поверсі, штукатурка стін, газовий котел, бетонні сходи, вікна, благоустрій. Поспішайте, таунхаусів в комплексі залишилось небагато..
Відстань до найближчого міста: У місті;
Кількість кімнат: 3;
Тип будинку: Таунхаус;
Рік побудови u/ здачі: На етапі будівництва;
Тип стін: Цегляний;
Зовнішнє утеплення стін: Мінеральна вата;
Тип покрівлі: Бітумна черепиця;
Cанвузол: 2 і більше;
Опалення: Індивідуальне газове;
Ремонт: Після будівельників;
Меблювання: Ні;
Інфраструктура (до 500 метрів): Супермаркет, ТРЦ, Аптека, Дитячий садок, Зупинка транспорту, Парк, зелена зона, Дитячий майданчик, Відділення пошти, Ресторан, кафе, Відділення банку, банкомат, Школа, Центр міста, Магазин, кіоск;
Ландшафт (до 1 км.): Ліс, Озеро;