Продам будинк 198м2+тераса 22м2 на 12 сотках Віта-поштова. 199000 у.о. (№ 22-410-332)
Ціна: 199 000 $

Характеристики
Ціна: | 199 000 $ |
---|---|
№ об'єкта: | 22-410-332 |
Тип: | будинок |
Поверхів: | 1 |
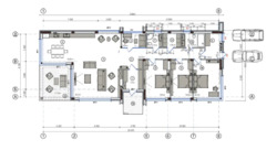
Площа будинку: | 198 м2 |
Ділянка: | 12 сот |
єОселя 3%: | - |
єОселя 7%: | - |
Адреса: Київська, Фастівський, Віта-Поштова
Продам котедж в с.Віта-Поштова 198м2 +тераса з ділянкою 12 сот - 5 хвилин на авто від Києва. Знаходиться в тихому місці - поруч ліс, озеро. Є найкращим варіантом заміського житла в Одеському напрямку. Вдале планувальне рішення в одному рівні – 3 зручні спальні, кабінет, простора вітальня-студіо з можливістю встановлення каміна, тераса з перголою, вбиральня, 2 санвузли. На останніх фото дизайн-проект аналогічного будинку -Площа ділянки – 12 соток (проведено топографічну зйомку, геологію, геодезію). -Площа будинку – 198 м2. -Кількість кімнат - 4, 2 санвузли, кухня, кабінет, гардероб, топкова. -Тераса - 22 м2. -Накриття тераси - деревяна пергола. -Свердловина - 82 м2 (сеноманський обрій). -Септик – автономний біосептик + дренажне поле. -Електрика - 20 кВт. Матеріали, що використані у будівництві котеджу: - Фундамент - монолітна плита товщиною 300 мм з ребром жорсткості. - Гідроізоляція фундаменту зовнішня та внутрішня (стиродур, мастика, руберойд). - Будова - монолітно-каркасна (бетон Б25). - Перекриття монолітні (бетон Б25). - Стіни - газобетон Д400 (товщиною 300 мм). - Перегородки - повнотіла червона цегла М100. - Фасад-термодерево - новозеландська сосна, короїд. - Утеплення фасаду - мінеральна вата 100 мм. Щільність – 135 грu002Fм2. - Оздоблення декоративних колон і цоколя - гнучка кераміка. - Вікна Salamander BlueEvolution 82 - 6 камер, 3 контури ущільнення. - Енергозберігаючий склопакет - двокамерний товщиною 50 мм, газ - аргон. - Мультифункціональне скло - 6 мм. - Монтаж з використанням гідро-пароізоляційних стрічок та теплого підставочного профілю за ДСТУ. - Дах скатний - фальцева покрівля, сталь європейської якості товщиною 0,5 мм. - Утеплення скатної покрівлі - мінеральна вата PAROC (Фінляндія) товщиною 250 мм. - Пласка покрівля - ПВХ мембрана FATRAFOL (Чехія) товщиною 1,5 мм. - Утеплення пласкої покрівлі - пінопласт 200 мм, щільність - 35 + бетонна стяжка - 200 мм. - Водостічні системи - металевий водостік виробництво Польща, сталь товщиною 0,7 мм SSAB (Швеція). - Паркан - металевий штакетник (Італія). - Ворота відкатні дистанційним керуванням. - Тротуарна плитка - Лайнстроун платіна (Україна). - Терасна плитка - клінкерна плитка (Польща)..
Відстань до найближчого міста: до 5 км.;
Кількість кімнат: 4;
Тип будинку: Котедж;
Кадастровий номер: 3222481200:05:002:0407;
Рік побудови u002F здачі: Після 2015;
Тип стін: Монолітний;
Зовнішнє утеплення стін: Мінеральна вата;
Тип покрівлі: Металеві листи;
Cанвузол: 2 і більше;
Ремонт: Під чистову обробку;
Меблювання: Ні;
Побутова техніка: Без побутової техніки;
Комфорт: Огорожа, Підсобні приміщення, Тераса, Автоматичні ворота, Відеоспостереження;
Комунікації: Свердловина, Електрика, Каналізація септик, Асфальтована дорога;
Інфраструктура (до 500 метрів): Магазин, кіоск, Парк, зелена зона, Зупинка транспорту, Ресторан, кафе, Дитячий садок;
Ландшафт (до 1 км.): Ліс, Озеро, Парк;