Двоповерховий будинок у стилі Hi-Tech. Гореничі. (№ 22-399-647)
Ціна: 750 000 $

Характеристики
| Ціна: | 750 000 $ |
|---|---|
| № об'єкта: | 22-399-647 |
| Тип: | будинок |
| Поверхів: | 2 |
| Спалень: | 3 |
| Площа будинку: | 350 м2 |
| Ділянка: | 12 сот |
| єОселя 3%: | - |
| єОселя 7%: | - |
| Додатково: | гараж |
Адреса: Київська, Бучанський (Києво-Святошинський), Гореничі
У затишному селі Гореничі, серед мальовничих краєвидів Житомирського напрямку, розташувався справжній витвір сучасної архітектури — двоповерховий будинок у стилі Hi-Tech. Його монолітний силует, що вирізняється серед зелених просторів, немовби гармонійно поєднує в собі стриманість і витонченість. Загальною площею 350 квадратних метрів, цей дім стоїть на розлогій ділянці у 12 соток, що дарує відчуття простору та свободи.
Будинок, зведений у 2019 році, був довершений у 2021, коли останні штрихи ремонту під рукою талановитого дизайнера перетворили його на справжній осередок комфорту та стилю. Весь простір, внутрішній та зовнішній, продуманий до найменших деталей, аби мешканці могли насолоджуватися кожним моментом, проведеним тут.
Ділянка довкола будинку, оздоблена ландшафтними шедеврами, зачаровує різноманітністю: вікові дерева, фруктові сади, а також невеликий басейн, що мерехтить на сонці. Зона барбекю та літня кухня з окремим санвузлом ідеально підходять для вечорів у колі родини або друзів. Простора тераса приховує багатофункціональну спортивну зону, де можна займатися спортом або просто відпочивати, насолоджуючись свіжим повітрям.
Гараж на два автомобілі та додатковий навіс забезпечують місце для транспорту, а автоматична система поливу та різноманітні сценарії освітлення створюють атмосферу затишку в будь-яку пору доби. Сучасні системи безпеки, включаючи відеоспостереження та сигналізацію, додають спокою.
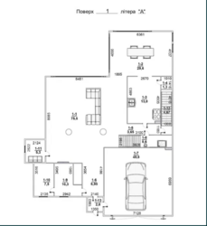
Внутрішнє планування будинку продумане для максимальної зручності. На першому поверсі розташована простора вітальня з виходом на терасу, де можна насолоджуватися ранковою кавою, обідня зона, що плавно переходить у кухню, гостьовий санвузол та кімната для няні. А з котельні є зручний вихід до гаража.
На другому поверсі на вас чекає розкішна master-спальня з власним санвузлом, гардеробною та кабінетом, з якого відкривається доступ до приватної тераси, де розташована сауна. Дитяча кімната, також із власним санвузлом та гардеробом, дарує дітям приватність та комфорт.
Цей будинок побудований із червоної цегли, з утепленням стін товстим шаром мінеральної вати. Тепла підлога на першому поверсі створює затишок навіть у найхолодніші дні. Міжповерхове перекриття виконане з моноліту, а дах вкритий металочерепицею та утеплений надійною мінеральною ватою. Комбінований фасад будинку вражає своєю естетикою.
Але справжньою перлиною цього будинку є безпечний підвал із системою вентиляції та Wi-Fi — тихий і спокійний куточок, важливий у сьогоденні, де можна перебувати у беспеці та бути на зв’язку з усім світом.
Будинок оснащений:
- тепловий насос Vaillant,
- газовий котел Vaillant,
- електричний котел.
- генератор на 7 кВт, замовлені акумулятори
- накопичувальний бак на 400л з підігрівом до 100С
Комунікації –
- газове постачання,
- свердловина 100м, септик,
- електропостачання 20кВт,
- 5ти ступінчата система очищення води.
Без % для покупця.












































































































































































