Продається будинок Київська, Бучанський (Києво-Святошинський), Петропавлівська Борщагівка, Полтавська  (№ 22-387-301)

Ціна: 260 000 $

Продається будинок Київська, Бучанський (Києво-Святошинський), Петропавлівська Борщагівка, Полтавська фото 1

Характеристики

Ціна: 260 000 $
№ об'єкта: 22-387-301
Поверхів: 2
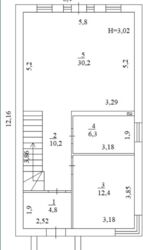
Площа будинку: 130 м2
Ділянка: 3 сот
єОселя 3%: -
єОселя 7%: -

Адреса: Київська, Бучанський (Києво-Святошинський), Петропавлівська Борщагівка, Полтавська

Продаж газифікованого будинку 130 м2 з дизайнерським ремонтом та меблями, Петропавлівська Борщагівка. Будинок збудований з газоблоку, утеплений пінопластом. Комфортне планування: простора кухня-вітальня, 4 окремі спальні, 2 санвузли. Комунікації: - Газ
- Світло 15 кВт, - Септик з переливом, - Свердловина.
В будинку виконаний якісний дизайнерський ремонт. Зроблена тепла підлога, встановлені кондиціонери, фільтрація води. Будинок оснащений всим необхідним, для комфортного життя.
Ділянка 3,3 сотки, рівна та правильної форми. Встановлені автоматичні ворота, викладена бруківка. Висаджені туї, постелений рулонний газон. Асфальтована, забудована та тиха вулиця. В пішій доступності ліцей, дитячий садок, супермаркети, кафе. Будинок з документами!

Об'єкт на карті