Продається будинок 111м2 на Петропавлівській Борщагівкі 185000$ (№ 22-386-043)
Ціна: 185 000 $

Адреса: Петропавлівська Борщагівка, Бучанський (Києво-Святошинський), Київська
Характеристики
| Ціна: | 185 000 $ |
|---|---|
| № об'єкта: | 22-386-043 |
| Поверхів: | 2 |
| Площа будинку: | 111 м2 |
| Ділянка: | 3 сот |
| єОселя 3%: | - |
| єОселя 7%: | - |
Опис
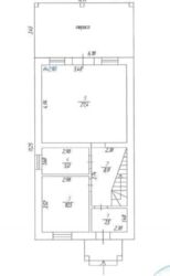
Продам гарний двоповерховий окремий будинок з сучасним та якісним ремонтом площею 111,5 м2. На першому поверсі велика кухня-вітальня (27,4м2), одна житлова кімната 10,5 м2, санвузол 5,0 м2, передпокій із шафою та місце для кладової під сходами. На другому поверсі 3 окремі спальні кімнати: 17,9 м2 із гардеробною, та дві кімнати по 13,8 м2 і 10,2 м2, а також другий санвузол 5 м2. Є додатково велике горище з обладнаними сходами. Зроблено якісний та сучасний ремонт влітку 2023 року, кухня обладнана вбудованою технікою (холодильник, посудомийна машина 60 см, духова піч, мікрохвильова піч, вар. панель), встановлена пральна машина (7кг). В кімнатах є меблі. Система опалення: двоконтурний котел Proterm LYNX 24, перший поверх система «тепла підлога», у сан вузлах електрична тепла підлога із терморегуляторами, що забезпечує теплом санвузли весна-літо-осінь без вмикання системи опалення. Система водопостачання: власна свердловина 38-40 м, водовідведення септик з потрійним переливом на 12 м2. Електропостачання 15кВт 3 фази, є вихід під генератор, підведено оптоволоконний інтернет. Власне подвір’я, гарний просторий заїзд та місце під 2-3 авто, вихід з кухні-вітальні на власну терасу, просторе місце під мангальну зону та ділянки для висадки квітів і ландшафтного декорування. Дуже вигідне та зручне місце розміщення (навпроти будинку великі комунальні ліцей та дитячий садок, є ще декілька приватних, поруч магазини, салони краси та інші об’єкти з надання побутових послуг, паркова алея, зупинка маршрутки до метро «Академмістечка»). Всі документи в наявності (на землю, на будинок, на газо та електропостачання).


















