Головна >> Продаж будинків >> Об'єкт №22355175

Таунхаус.Готовий. ЖК Континент. Буча. 68000  (№ 22-355-175)

Ціна: 68 000 $

Таунхаус.Готовий. ЖК Континент. Буча. 68000 фото 1

Характеристики

Ціна: 68 000 $
№ об'єкта: 22-355-175
Тип: таунхаус
Поверхів: 2
Спалень: 4
Площа будинку: 100 м2
Ділянка: 1 сот
єОселя 3%: +
єОселя 7%: +

Адреса: Київська, Буча, Буча, Івана Кожедуба

Готовий для ремонту танхаус.
Закрита територія.
Територія з ландшафтним дизайном, укладена тротуарна плитка.
Таунхаус з центральними комунікаціями: газ, вода, каналізація, світло.
Усі підключено.
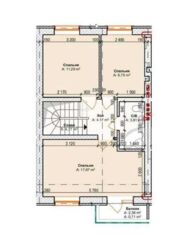
Вдале планування.
На першому поверсі – кімната, санвузол та велика кухня – студія з виходом на терасу.
На другий поверх ведуть сходи.
Тут три кімнати, санвузол.
Побудований із газоблоку, утеплений мінеральною ватою.
На стінах штукатурка, на підлозі стяжка.
На першому поверсі тепла підлога та у санвузлі другого поверху.
Місце розташування зручне, тому що супермаркети, магазини, ринок, школа, садок у пішій доступності 5-10 хвилин

Об'єкт на карті